71,73m²
LOCATION VIDE - 3 Pièces - Montreuil
Résidence Les Madriers (Programme Neuf Cogedim)
M° Robespierre ou M° Porte de Montreuil, rue d'Alembert dans une résidence livrée en Juin 2024, vaste 3 pièces d'environ 72m² (71,78m² carrez) à louer.
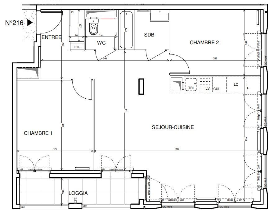
Situé au 1° étage avec ascenseur, cet appartement traversant se compose d'une entrée avec placard, d'un vaste séjour avec loggia et cuisine ouverte (lave-vaisselle, plaque et four fournis), d'une première chambre sur rue calme, d'une seconde chambre donnant sur le jardin de la résidence avec accès loggia, d'une salle de bain et d'un wc indépendant avec branchement machines. Un emplacement de parking au sous-sol de la résidence avec accès direct par ascenseur est inclus.
Appartement neuf, avec parquet, double vitrage, et aux nouvelles normes énergétiques.
Chauffage et eau collectifs (chaudière commune à granulés).
DPE : A-64 / GES: A-1. Conso. énergétique finale 57kwh/m²/an. Montant annuel estimé des dépenses d’énergie pour un usage standard (année de réf. 01/01/2021 ) : entre 290€ et 393€/an.
Loyer 1825€/mois ( dont 130€ de provision pour charges mensuelles avec régularisation annuelle et complément de loyer de 100€ pour le parking et 75€ pour la loggia)
Dépôt de garantie : 1695€
Honoraires de location : 1080€ TTC (dont 216€ de frais d'état des lieux)
Les informations sur les risques auxquels ce bien est exposé sont disponibles sur le site Géorisques : www.georisques.gouv.fr
Zone soumise à encadrement des loyers (loyer hors charges)
| Loyer de base | Loyer de référence majoré |
|---|---|
| 17,70€/m² | 21,20€/m² |
| 1269€/mois | 1520€/mois |

