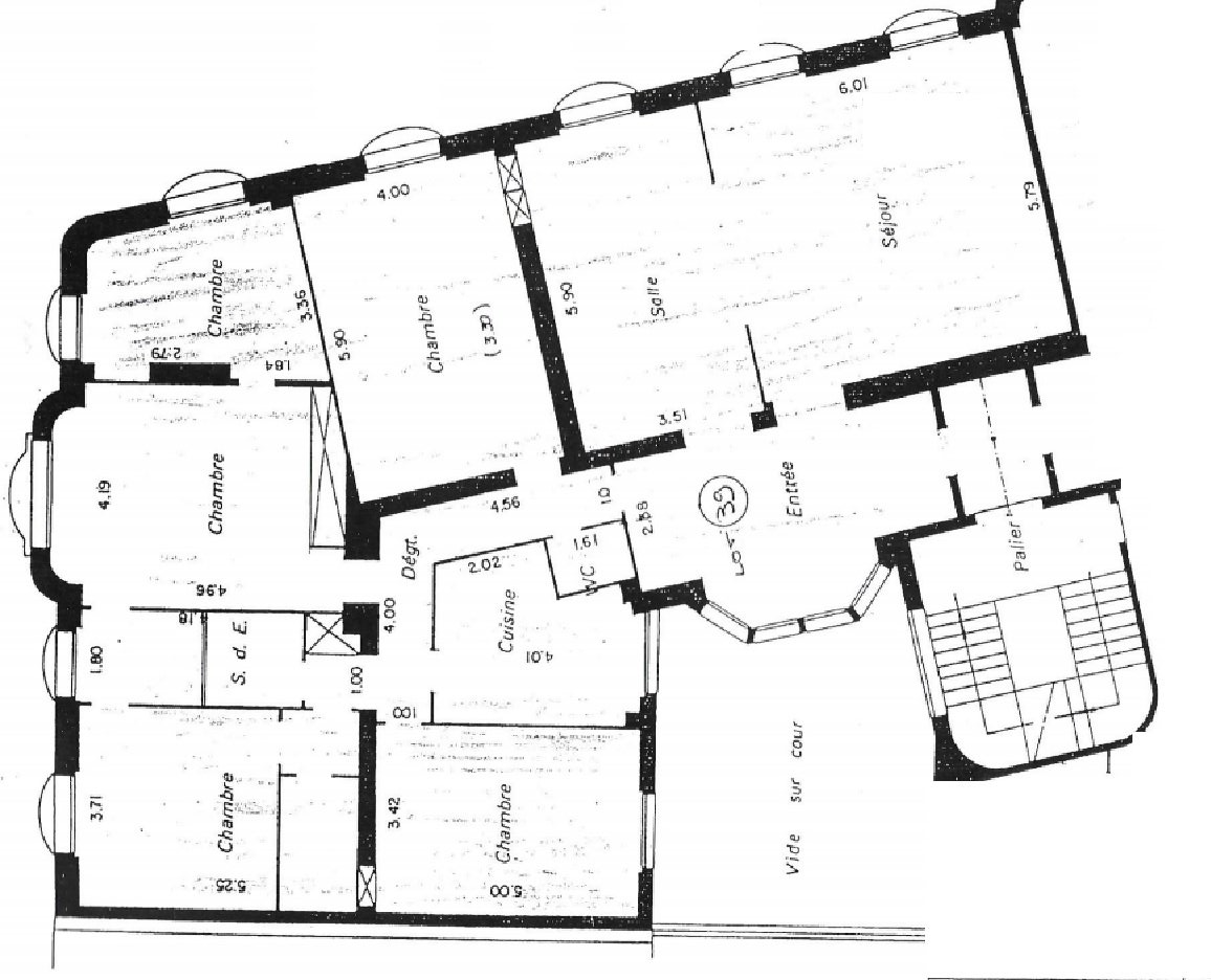
198.50m²
DEJA VENDU - SECTEUR TRINITE / SAINT LAZARE
Lot 39 / 3° étage ascenseur
Dans un immeuble haussmannien de grand standing avec gardienne, au 3° étage avec ascenseur . Appartement de réception de 7 pièces de 198.50m². Composé d'une galerie d'entrée, un séjour, une salle à manger, cuisine dînatoire, 5 chambres, une salle d'eau et une salle de bain, wc séparé . Cave au sous-sol. DPE : D-170 / GES : D-22.
Chauffage et eau collectif. Possibilité d'acheter un parking en sus.
Charges annuelles : environ 9170€/an
Taxe foncière : environ 3550€/an
Nombre de lots dans la copropriété : 30
Procédures en cours : Oui
Prix de vente F.A.I. : 2 331 000€
dont 3,6% TTC d'honoraires de vente à la charge de l'acquéreur

