env. 47m²
A VENDRE - SECTEUR BLANCHE - 2/3 PIECES – env. 47m² – PARIS 9°
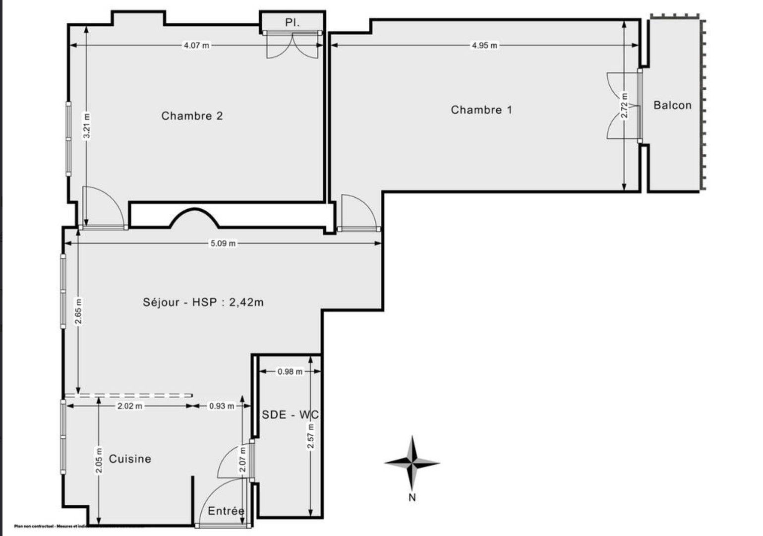
M° Blanche, appartement de 2/3 pièces de 46,75 m² au 5ème étage d'un immeuble ancien de bon standing avec ascenseur. Il se compose d'une cuisine US avec espace salle à manger, un séjour, une chambre avec balconnet et rangements, et une salle d'eau avec wc . Un débarras sur le palier et une cave au sous-sol de l'immeuble complètent ce lot.
Chauffage et eau chaude individuels au gaz
DPE : E-297 / GES : E-64
(Montant annuel estimé des dépenses d’énergie pour un usage standard année de réf. 01/01/2021 : de 980€ à 1370€).
Charges communes générales de copropriété : environ 2 360€/an
Taxe foncière : 459€/an (TF 2023)
Lots dans la copropriété : 25
Procédure en cours dans l'immeuble : non
Prix de vente F.A.I. : 595 000€ (dont 28 000€ TTC d'honoraires de vente à la charge de l'acquéreur)

